造作家具の設計

スタッフの榎本です。
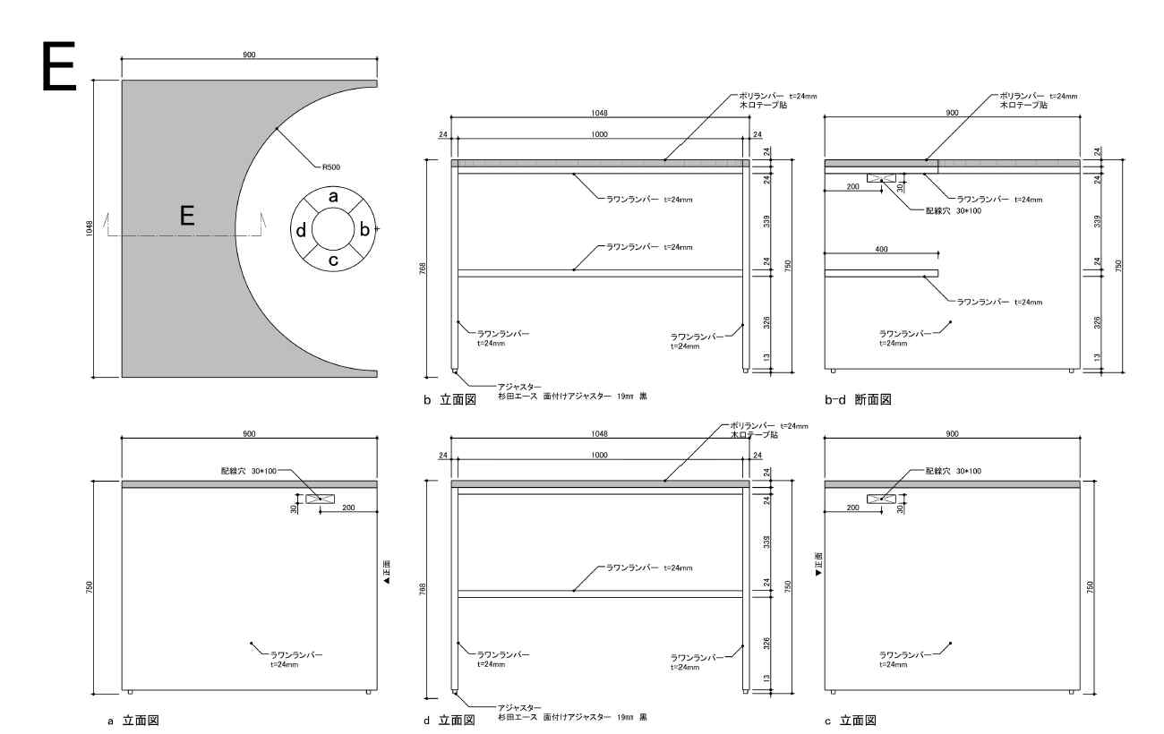
現在進行中の新築の現場で、造作テーブルを製作することになりイメージパースと図面を作ることになりました。
お客様の趣味の為のテーブルで、電車の模型を走らせるための台になるそうです。
12個の組み合わせで4m×2mほどの大きなテーブルになります。
現在、作業場で弊社の大工さんが製作中なので完成が楽しみです。
水井大輔
株式会社 水井装備
0425573829
〒190-1223 東京都西多摩郡瑞穂町箱根ヶ崎西松原14-4
https://mizuisoubi.com



